rare teeth residence
two-story townhouse renovation + expansion
bronx, ny
floorplans | existing
Unit C6: Level 1
Unit B18: Level 1
Unit B18: Level 2
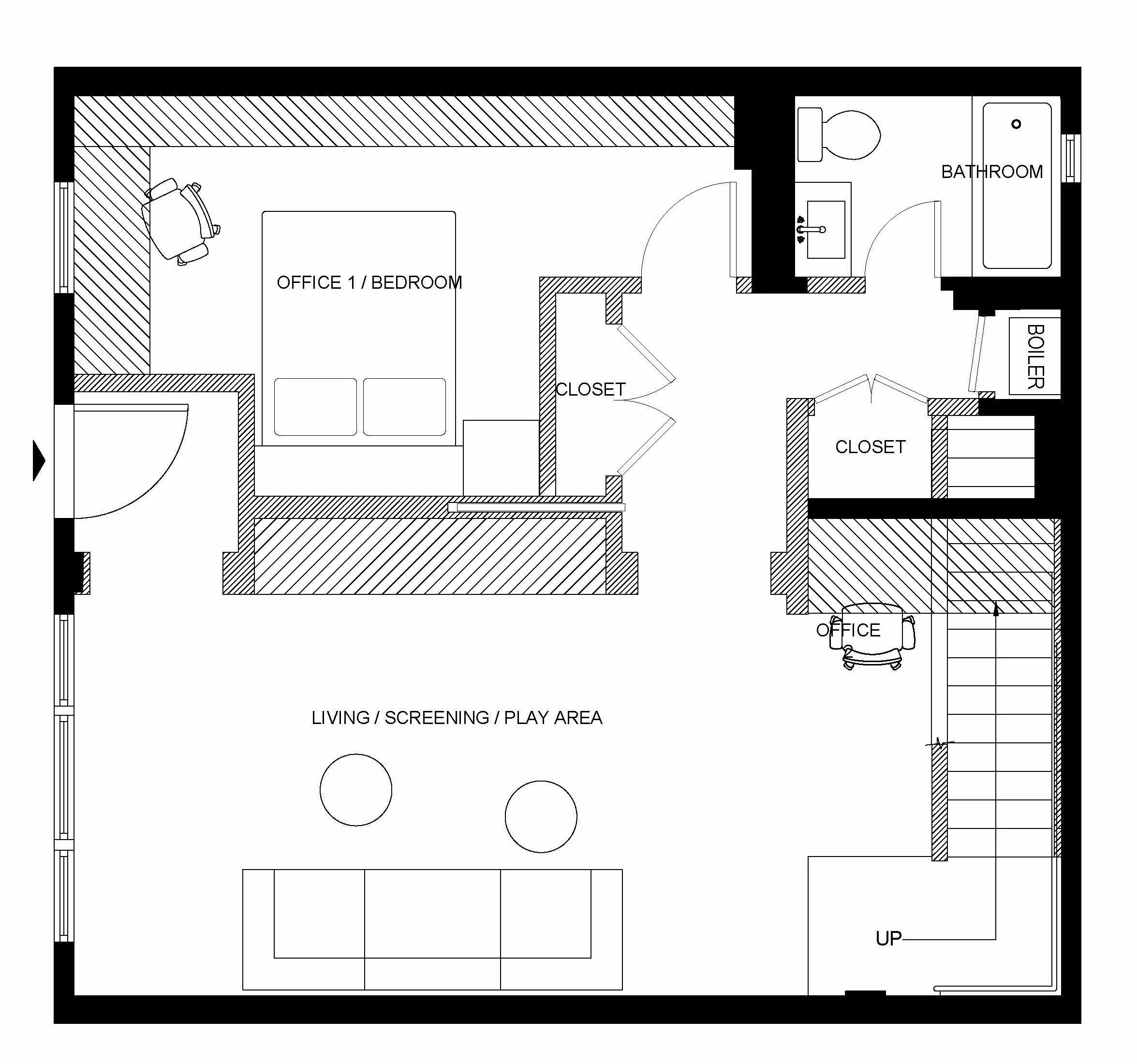
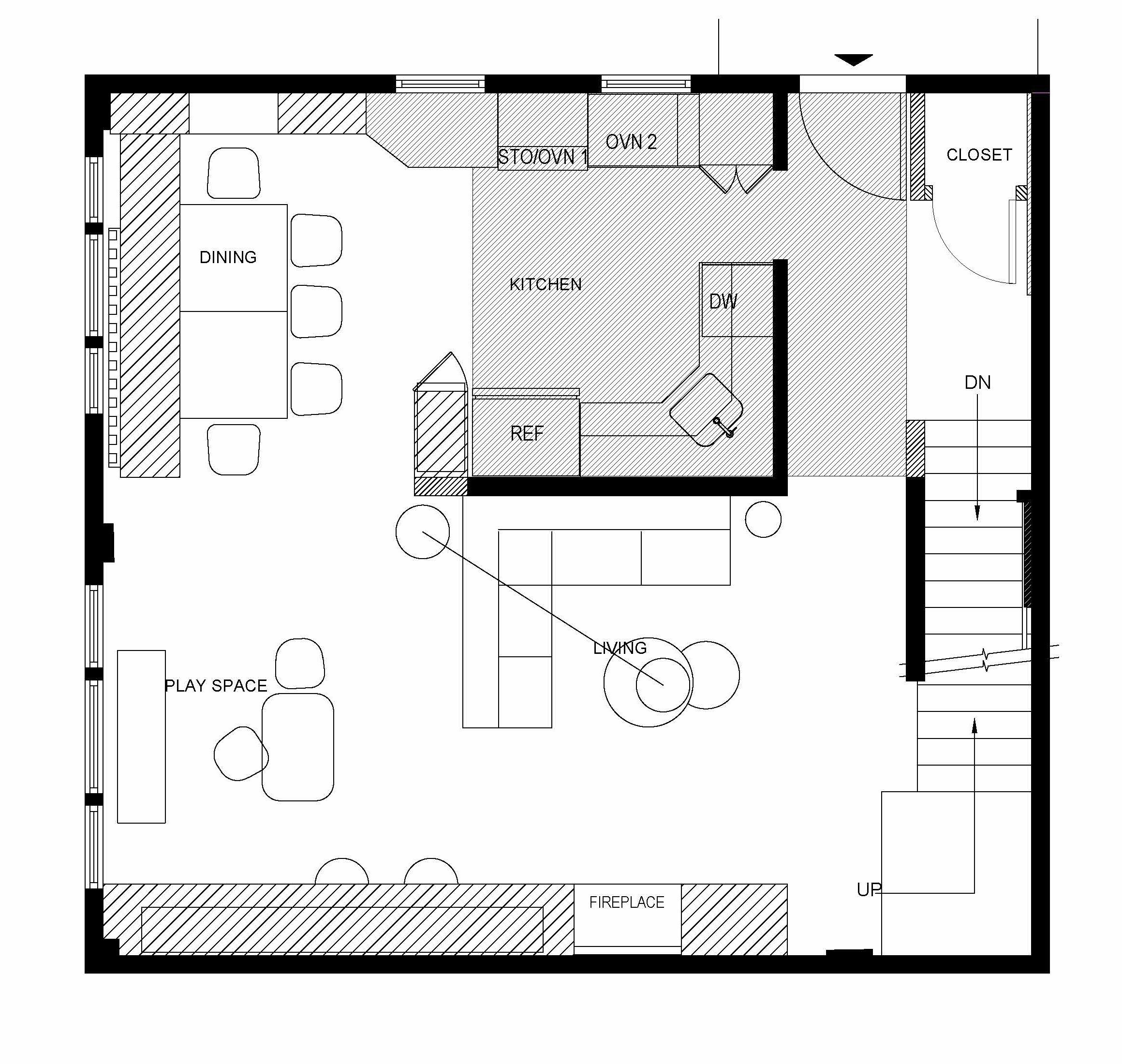
floorplans | proposed
Unit C6: Level 1
Unit B18: Level 1
Unit B18: Level 2